HEMPCRETE OAK-FRAME LODGE HOUSE | HAWKLEY, HAMPSHIRE.


HAWKLEY HAUS
HEMPCRETE LODGE HAWKLEY HAMPSHIRE ENGLAND
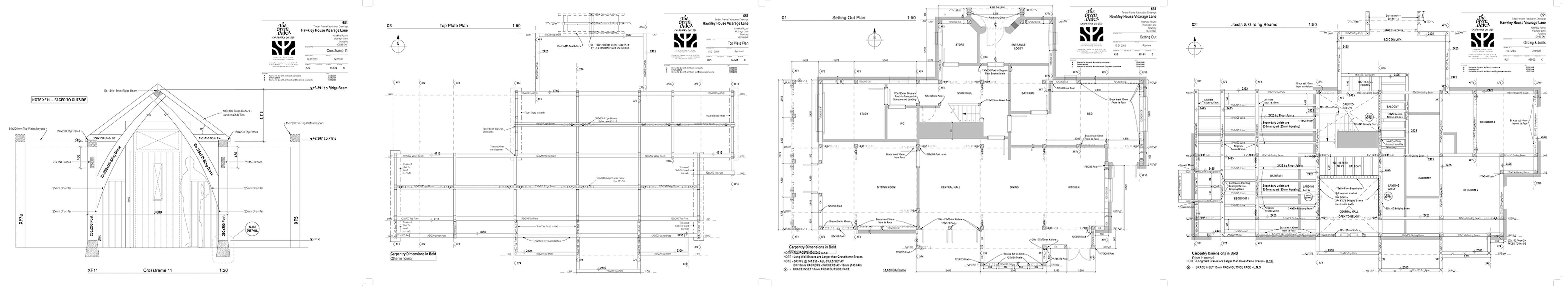
This project serves as inspiration for Beazea residential projects and concepts. Defining a collation of traditional oak-frame construct, this Lodge House was designed utilising Green Oak Carpentry, as a method with client narrative, where energy use can be harnessed on land and for up-to-date uses of modern materials, as Hempcrete was explored as a “skin” and pumped, sprayed, used and enjoyed with Limestone Render to Interior and Exteriors with a 25mm reveal across internal areas. Similar to a Wattle and Daub process.
DATA
Program: Residential
Client: Private
Team: NW / GOCC / KS