“CORTILE UNO” SMALL GARDEN SPACE RE-IMAGINED, FULHAM LONDON.









BURNFOOT AVE.
FULHAM LONDON ENGLAND
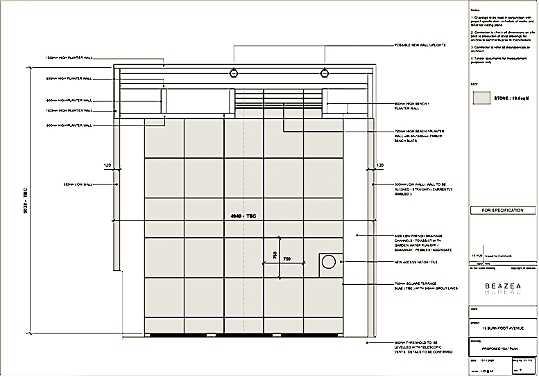
Rapid project for a small terraced home, new rear Yard area in Fulham. Asked to create a more usable external area, we designed this tiled, “Cortile” area. Exploring suffiient drainage channels, with high level Planting Beds formed to allow for foliage and a small bench area.
Porcelain, French Drains and rendered Brickwork.
DATA
Year: 2021
Status: Complete
Program: External Works
Client: Private
Team: G.Gavezenni & Beazea
